

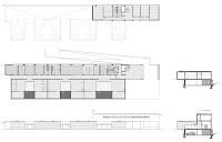
Localiza-se a norte de um centro comunitário pré-existente. O novo edifício surge como uma reacção ao centro aí existente caracterizado por uma arquitectura complexa e algo desordenada. Assim optou-se por desenvolver uma solução linear, com o objectivo de simplificar todo o conjunto. Criam-se dois volumes sobrepostos, o inferior para as actividades lectivas e serviços de apoio da creche e o superior para a área administrativa.
Estabelecem-se relações com o pré-existente, resultante da retirada de massa ao volume térreo do edifício, resultam pequenos pátios para onde se abrem as salas de actividades. Desta forma, existem condições para se obter espaços tranquilos e com privacidade para o recreio em separado dos diferentes grupos etários de alunos. Internamente um corredor separa as salas de aula, dos diferentes serviços de apoio.
A entrada principal resulta do espaço livre deixado pela intercepção dos dois volumes.
Estabelecem-se relações com o pré-existente, resultante da retirada de massa ao volume térreo do edifício, resultam pequenos pátios para onde se abrem as salas de actividades. Desta forma, existem condições para se obter espaços tranquilos e com privacidade para o recreio em separado dos diferentes grupos etários de alunos. Internamente um corredor separa as salas de aula, dos diferentes serviços de apoio.
A entrada principal resulta do espaço livre deixado pela intercepção dos dois volumes.





.jpg)